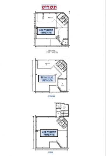
היילנד > נכסים שהועלו על ידי גולש > 509מר להשכרה נכס מסחרי רב שימושי להשכרה במרכז ירושלים / חשיפה ונראות גבוהה!!
סוג עסקה
השכרה
מחיר כולל
51100shekel
גודל השטח
509 מ''ר
גודל השטח
509 מ''ר
כתובת
מרכז ירושלים קינג ג׳ורג
מספר הנכס
29001

שירות חיפוש פרואקטיבי

לידיעתך, מדי יום מתוספים עשרות נכסים, אחד מהם עשוי להתאים לך, באפשרותך להיחשף אליו ראשון.

אם לא מצאת את שחיפשת, אנחנו נמצא בשבילך ונעדכן אותך מיידית.

לחץ כאן