היילנד > נכסים שהועלו על ידי גולש > 500-1550מר שטח מסחרי להשכרה ישפרו מודיעין / ק״ק / בית פז / על 431 ותחנת רכבת / מיידי
סוג עסקה
השכרה
מחיר למטר
80₪
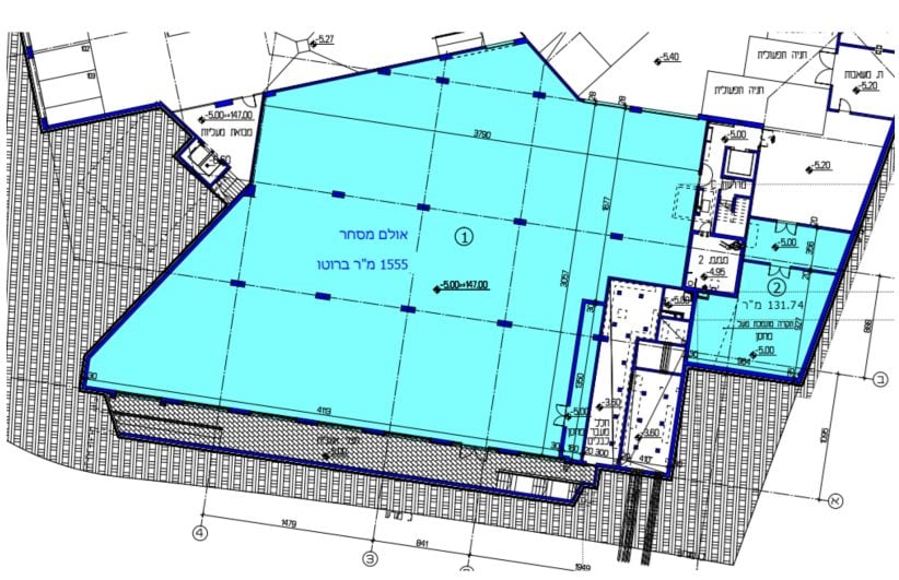
גודל השטח
1550 מ''ר
גודל השטח
500 מ''ר
חנייה
תלת מפלסית בשפע
ניהול הבניין
24/7
כתובת
ישפרו מודיעין
מספר הנכס
30208

שירות חיפוש פרואקטיבי

לידיעתך, מדי יום מתוספים עשרות נכסים, אחד מהם עשוי להתאים לך, באפשרותך להיחשף אליו ראשון.

אם לא מצאת את שחיפשת, אנחנו נמצא בשבילך ונעדכן אותך מיידית.

לחץ כאן