השכרה
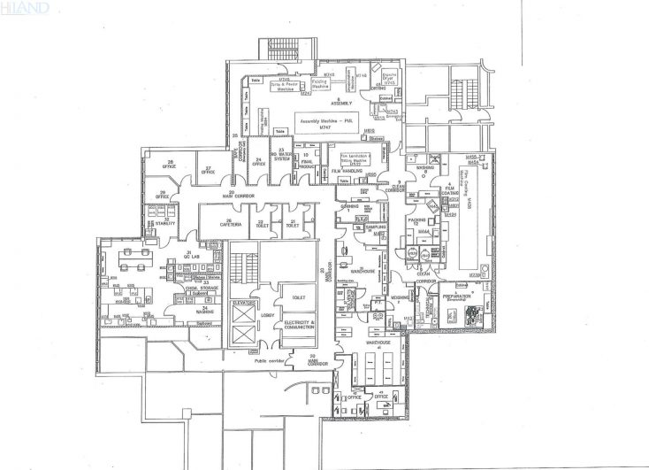
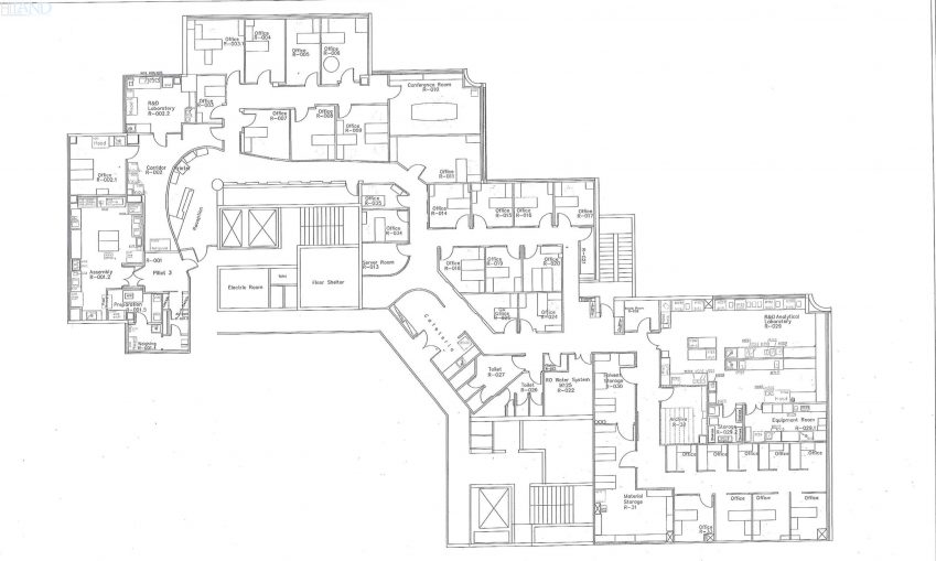
היילנד > נכסים שהועלו על ידי גולש > 860-1900מר מעבדות חדרים נקיים (ISO8) ומשרדים / ירושלים / מיידי + אופ׳ לציוד
65₪
1900 מ''ר
864 מ''ר
20 עמדות / 450שח
14שח / 24/7
הר חוצבים ירושלים
24792
שירות חיפוש פרואקטיבי
לידיעתך, מדי יום מתוספים עשרות נכסים, אחד מהם עשוי להתאים לך, באפשרותך להיחשף אליו ראשון.
אם לא מצאת את שחיפשת, אנחנו נמצא בשבילך ונעדכן אותך מיידית.
לחץ כאן


